A beautifully positioned detached two-bedroom bungalow located within the sought-after Badgers Walk setting of Cedars Village

Badgers Walk, Chorleywood, WD3
- £530,000
- For Sale
Badgers Walk, Chorleywood, WD3
- £530,000
- For Sale
- 2
- 2
- 3
Features
- Detached two-bedroom bungalow
- Sought-after position on Badgers Walk within Cedars Village
- Bright sitting room opening to dining area
- Conservatory with doors to patio and communal gardens
- Fitted kitchen with rear aspect outlook
- Principal bedroom with built-in wardrobes and en-suite shower room
- Second bedroom ideal for guests or study
- Private patio area with attractive communal grounds beyond
- Access to Cedars Village facilities and 24-hour emergency assistance
- EPC: C
Sales
- 01923 282244
- sales@binksweb.com
Lettings
- 01923 282788
- lettings@binksweb.com
Follow


The Property
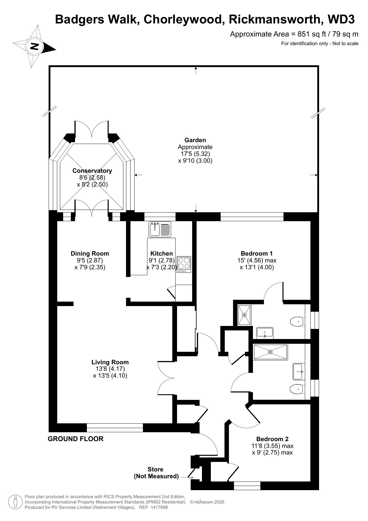
The property is approached via an attractive frontage with established planting and a useful external cupboard housing the meters and bin store. A private front door opens into a welcoming entrance hall with useful storage cupboards, loft access and a wall-mounted call monitor system connected to the 24-hour emergency assistance service.
Double doors lead into a bright and spacious sitting room with a large front-aspect window overlooking the communal gardens, creating a wonderful sense of light. An open archway flows through to the dining area, which leads into the conservatory via double French doors — a lovely space with a tiled floor and doors opening onto a small patio area within the beautifully maintained communal gardens.
The kitchen is fitted with a range of white gloss wall and base units with roll-top work surfaces incorporating a stainless-steel sink and four-ring ceramic hob, together with space for appliances and a pleasant rear-aspect outlook.
The principal bedroom overlooks the gardens to the rear and benefits from a built-in double wardrobe and en-suite shower room. A second bedroom to the front provides an ideal guest room, study or hobbies room. The main bathroom is fitted with a seated bath, wash hand basin and WC.
Location
Cedars Village is an exclusive retirement community for the over-60s, combining independence, security and a welcoming lifestyle. Set within 22 acres of landscaped grounds opposite the historic Chorleywood Common, the village enjoys a tranquil yet convenient setting.
At the heart of the community is the Grade II listed Victorian Mansion House, home to a newly refurbished library, convenience store, restaurant, bistro and a range of social spaces. Residents also benefit from attractive amenities including croquet lawns, a wellbeing hub and excellent communal facilities. Further investment continues to enhance the village, with new features such as a health centre and upgraded communal areas.
Homes are designed with comfort and practicality in mind, offering flexible living spaces and modern safety features. Cedars Village provides an exceptional environment where community spirit and beautifully maintained surroundings create a rewarding retirement lifestyle.
Lease and Other Material Information
Tenure: Leasehold
Property Type: Retirement
Lease: 999 year lease from 1st November 2023
Ground Rent: £0 pa
Management Fee: £9,008.48 pa (1st January 2026 to 31st December 2026 and annually thereafter) for single and double occupancy
Council Tax Band: Three Rivers District Council – Band F – £3,345.48 pa (2025– 2026)
Event Fee
Owners of a Retirement Villages Lease are required to pay an event fee on re-sale of the property which is 4% for a sale in the first year, 8% for a sale in the second year, 12% for a sale in the third year, 16% for a sale in the fourth year, and 20% for all sales after the fourth year.
Estate agency fees of 1.5% when RV PROPERTY HOLDINGS LIMITED undertake sales and marketing or sellers choice of agent.
Please ask the Village Manager for more details and a copy of the financial implications.
For full information on the management fee please contact the Village Manager. The service includes:
• Full on-site professional estate management.
• Upkeep and maintenance to the exterior of buildings and grounds.
• Building insurance.
• Membership of the Country Club, which is exclusively for residents and their guests.
• Provision of a maintenance reserve fund.
• Heating, lighting and energy costs of communal area.
• External window cleaning/decorating
• One hour’s domestic cleaning per week.
• Weekly collection and laundering of bed linen.
• Use of Cedars Village launderette.
• Emergency call & monitoring system.
• Visiting GP’s surgery in Cedars Village’s own Wellbeing Hub.
Additional care packages can be tailor made on request. Charges apply.
Communal entrance with security code access. Lift and Stairs to Accommodation.
Garages are available to rent, please ask for details.
All properties are pre-installed for Virgin Media – Clients to organise their own media packages.
You must be 60 years or over to become a purchaser at Cedars Village. Purchase of a Retirement Villages property is subject to an introductory acceptance interview with the Village Manager.
Created 04-03-2026






